Дизайнер определяет стилистическое направление заданного помещения, учитывая пожелания заказчика и его бюджет.
1. Дизайнер продумывает план расстановки мебели.
Первым делом специалист выезжает на замеры помещения. Исходя из оптимального варианта зонирования, дизайнер подготавливает проектную документацию для последующих ремонтных работ.
2. Дизайнер разрабатывает:
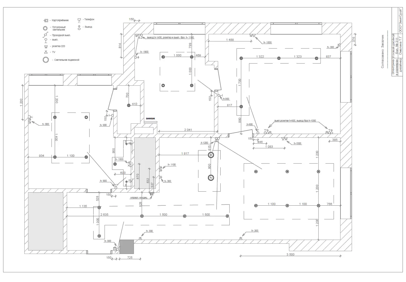
- План размещения электрики;
- План размещения сантехники;
- План потолка (уровни, модификация потолка);
- План пола (модификации, раскладка).


3. Дизайнер осуществляет подбор отделочных материалов:
- Декоративная штукатурка;
- Стеновые панели;
- Керамогранит;
- Паркетная доска;
- Ламинам;
- Ковровое покрытие.
4. Дизайнер осуществляет подбор мебели, элементов декора.
5. Дизайнер, по желанию заказчика, предоставляет эскиз интерьера, 3D визуализации.


6. Дизайнер осуществляет авторский надзор, позволяющий максимально приблизить идеи задуманного интерьера к реальному воплощению.